Hammarsland Nord- Øygarden
Moderne leiligheter
Flotte, tidsriktige leiligheter
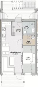
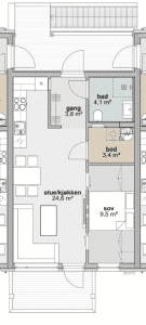
Leilighetene har et bruksareal på omtrent 65 kvadratmeter. De har en romslig, åpen stue- og kjøkkenløsning på over 30 kvadratmeter, to soverom, bad og bod.
For leilighetene på bakkeplan medfølger utvendig treplatting, mens det for leilighetene i annen etasje medfølger balkong.
Våre leiligheter
A-028: Kommer for salg!
A-027: Kommer for salg!
A-026: Kommer for salg!
A-025: Kommer for salg!
A-024: Kommer for salg!
A-023: Kommer for salg!
A-022: Kommer for salg!
A-021: Kommer for salg!
A-020: Kommer for salg!
A-019: Kommer for salg!
A-018: For salg!
A-017: For salg!
A-016: For salg!
A-015: For salg!
A-014: For salg!
A-013: For salg!
A-012: Kommer for salg!
Kan fås med 3 soverom
A-011: Kommer for salg!
Kan fås med 3 soverom
A-010: Reservert!
A-009: Kommer for salg!
Kan fås med 3 soverom
A-008: For salg!
A-007: For salg!
A-006: For salg!
A-005 – SOLG!
A-004: SOLGT!
A-003 – SOLGT!
A-002: SOLGT!
A-001: SOLGT!
Meld din interesse
Vi tar kontakt innen kort tid!
