Finnsrudveien 16 – Tiltalende og pen enebolig under oppføring – Solrik og romslig tomt – Beliggende i enden av blindvei – Nært golfbane
Finnsrudveien 16, 1383 Asker- Priskr 11 890 000
- Offentlige omkostningerkr 103 591
- Boligtype Enebolig
- Bruks areal (BRA) 160 m²
- BRA I 160 m²
- Soverom 4
Velkommen til Finnsrudveien 16
Velkommen til Finnsrudveien 16
– en moderne og tiltalende enebolig over to etasjer, som nå er under oppføring. Boligen får et tidsriktig og eksklusivt preg med arkitektur i rene linjer, kledning i stående malmfuru behandlet med jernvitrol for minimalt vedlikehold, samt vinduer og balkongdører i sort. Estimert ferdigstillelse er 1. kvartal 2026.
Planløsningen er gjennomtenkt og arealeffektiv, med store vindusflater som slipper inn rikelig med dagslys. Det leveres listefrie, hvite overflater kombinert med hvitpigmentert 1-stavs laminatgulv. Boligen får to delikate bad, hvorav ett med opplegg for vaskemaskin og tørketrommel. Balansert ventilasjon sørger for et sunt og behagelig inneklima året rundt.
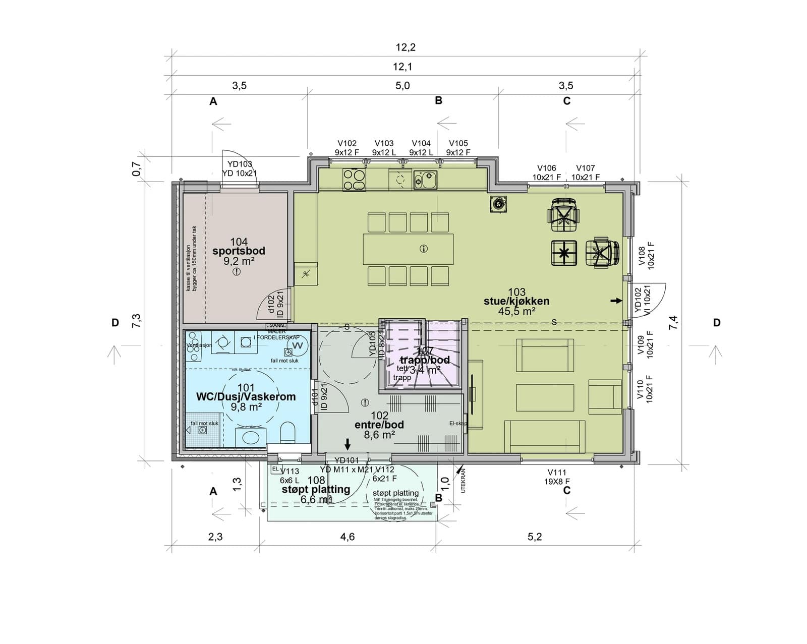
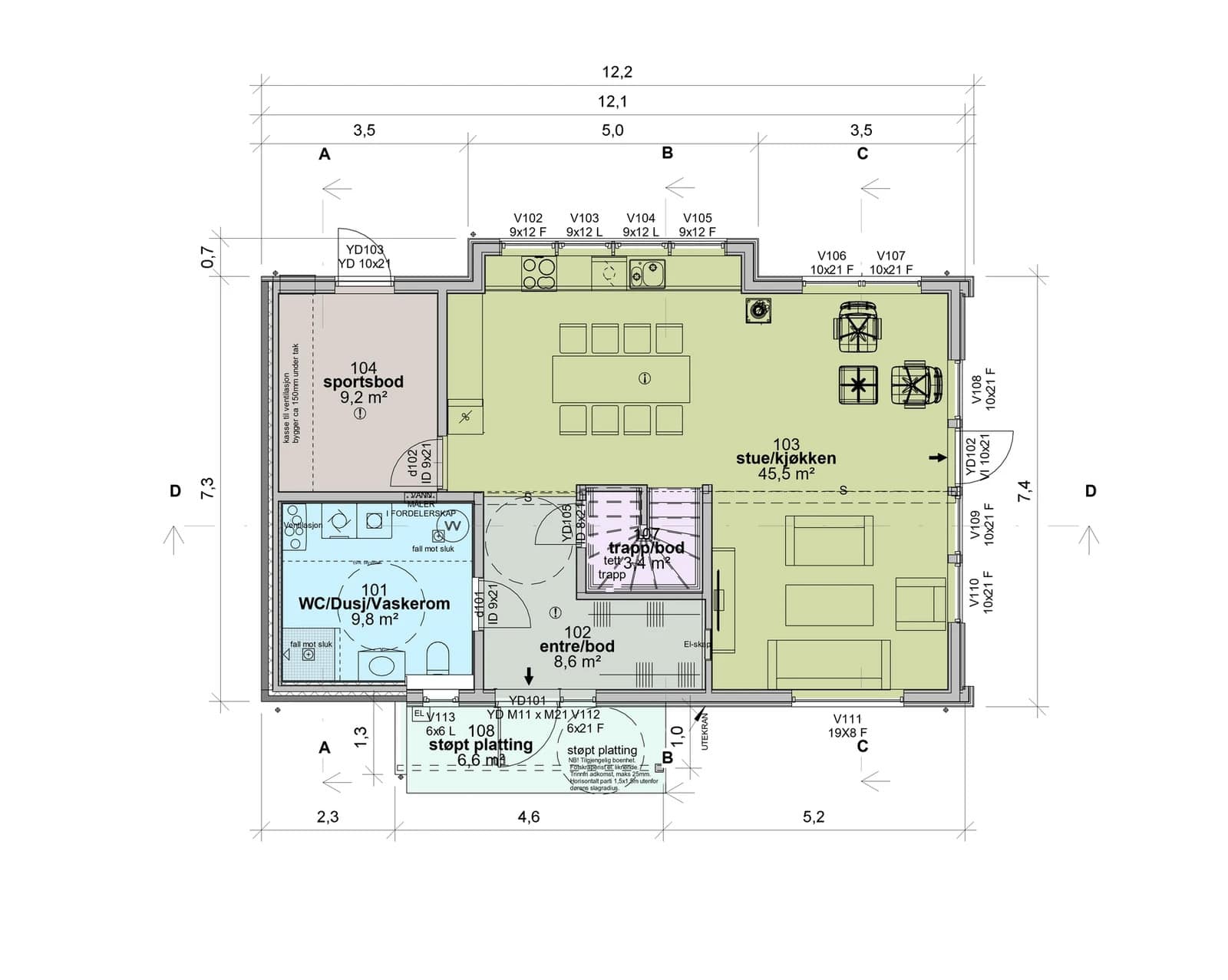
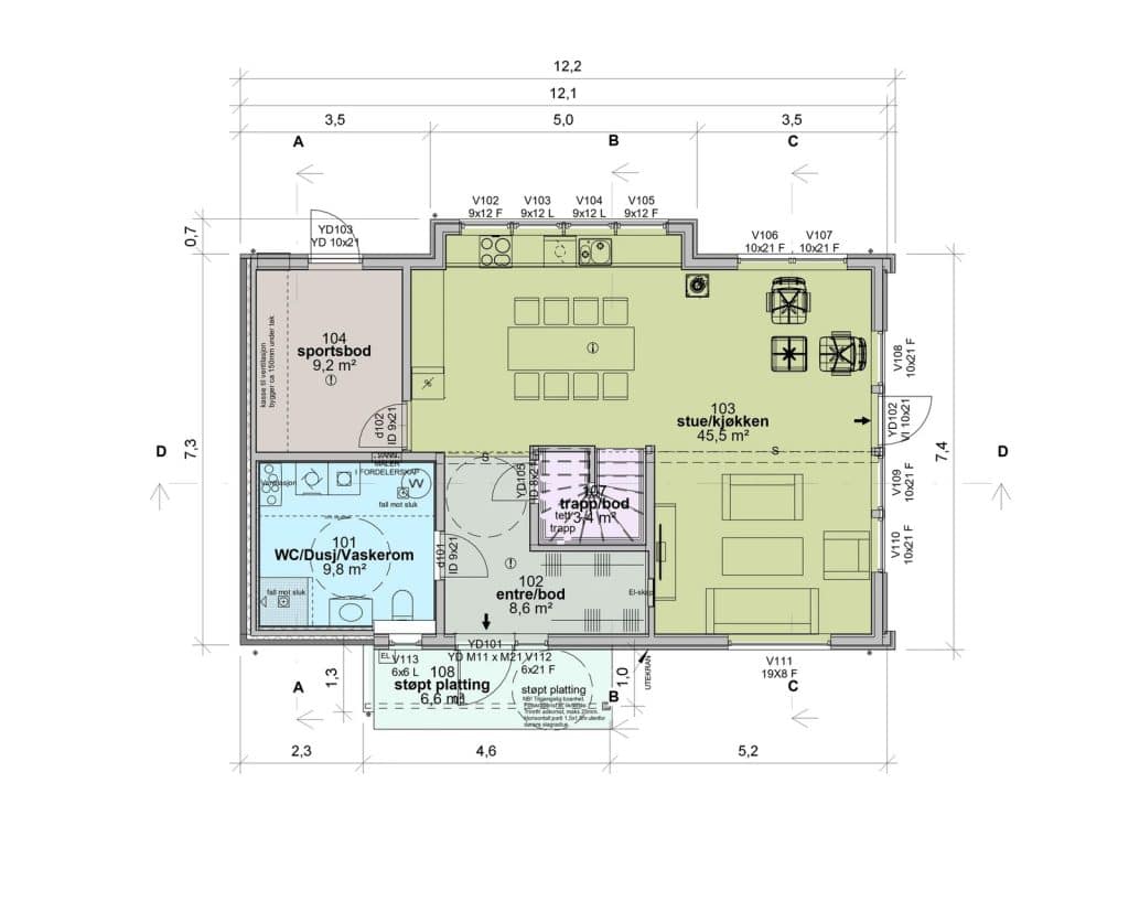
Husets hjerte blir den åpne stue- og kjøkkenløsningen på hele 49 kvm – et sosialt og innbydende oppholdsrom. Kjøkkenet leveres av JKE Design med integrerte hvitevarer og valg mellom to fronter.
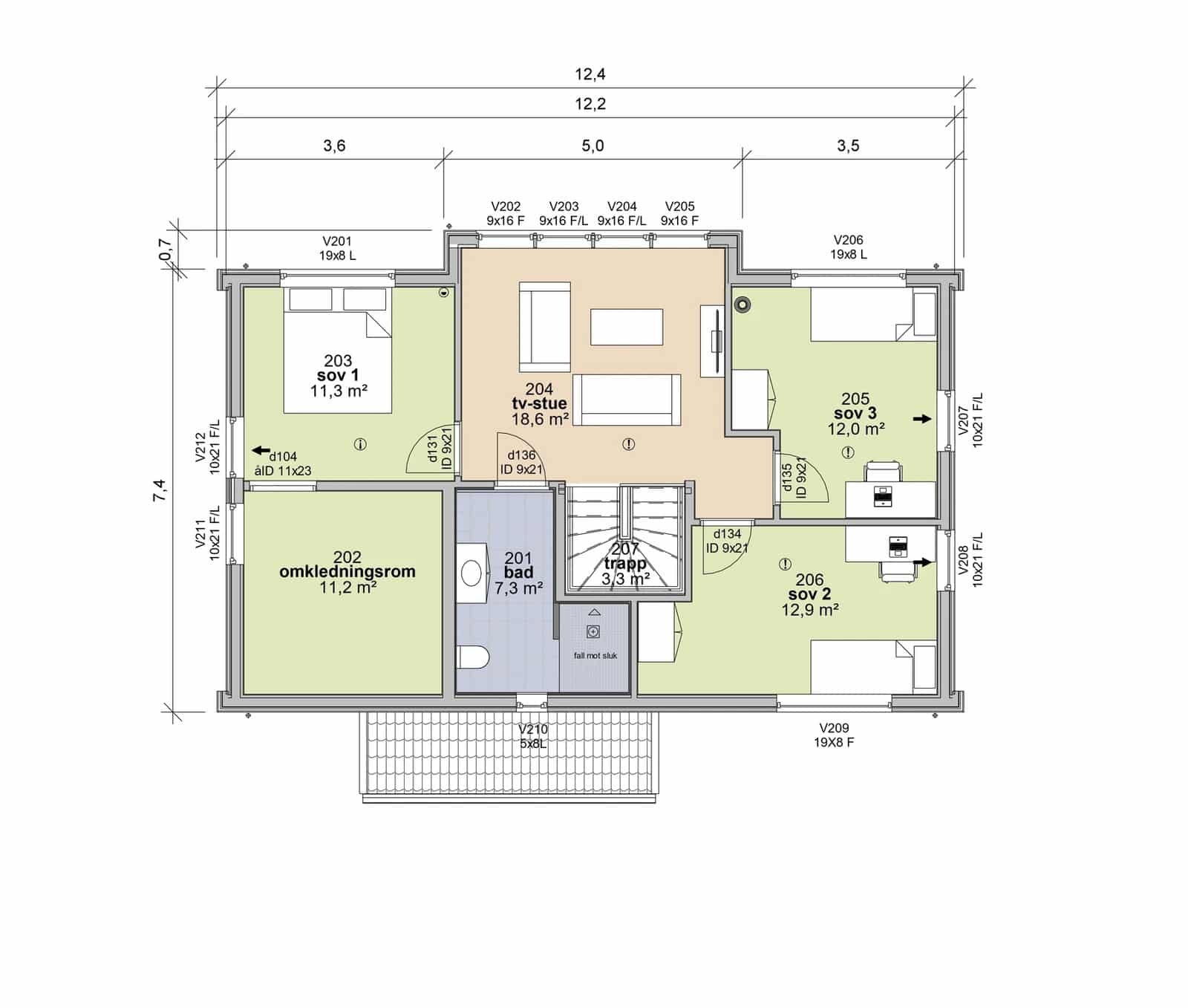
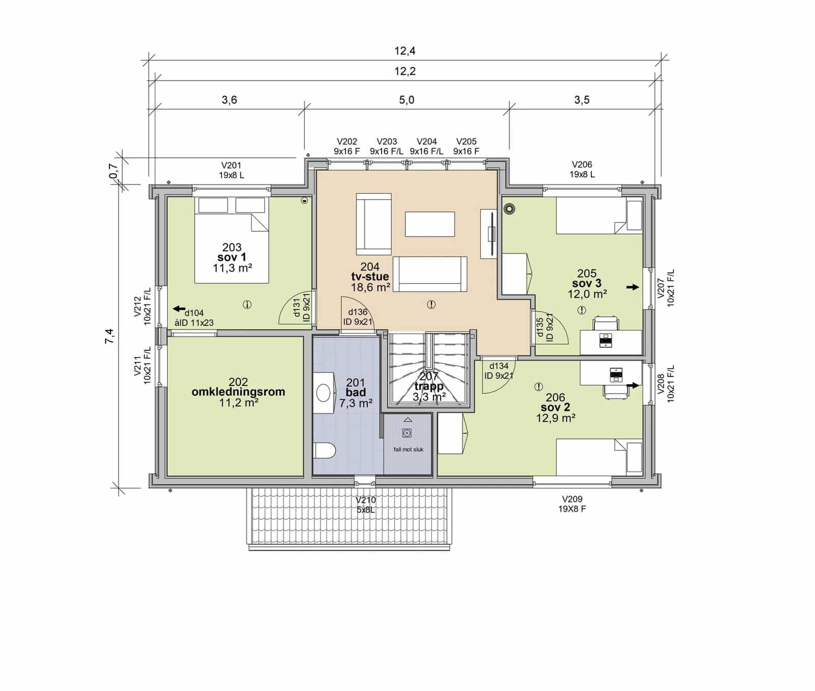
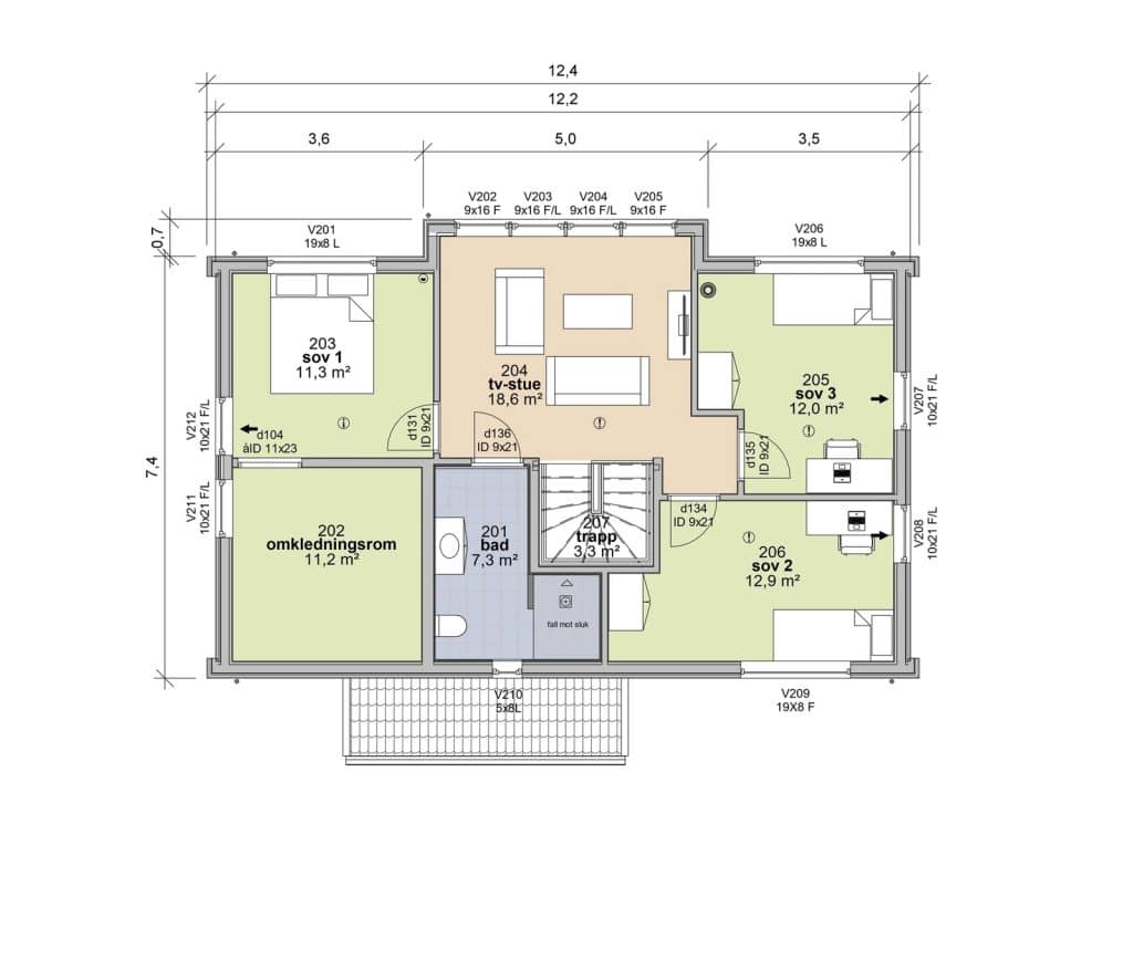
Videre får boligen tre soverom, hvor hovedsoverommet har eget omkledningsrom. I samme etasje ligger også en hyggelig TV-stue. Etter ønske kan man få boligen med fire soverom. For lagringsbehov er det en praktisk innvendig sportsbod på 9,3 kvm.
Eiendommen ligger i et nyere boligfelt på Finnsrud i Asker kommune, ca. 3 km vest for sentrum. Beliggenheten er ideell for rekreasjon, med umiddelbar nærhet til flotte turstier innover i marka. Om vinteren kjøres det opp skiløyper i området, som gir gode muligheter for friluftsliv året rundt.
Beliggenhet
Eiendommen ligger i et nyere boligfelt på Finnsrud i Asker kommune, ca. 3 km vest for sentrum. Beliggenheten er flott med tanke på rekreasjon, og det er umiddelbar nærhet til turstier innover i marka. På vinteren kjøres det opp skiløyper i nærheten.
Det tar ca. 5 minutter å gå til et friområde ved Finnsrudvannet ved Asker Golf, som er tilrettelagt med sandstrand og badebrygge. Det er også gode bade- og fiskemuligheter ved populære Semsvannet, og her er det fine turveier for gående, syklende og skientusiaster.
Asker byr på et hyggelig handelssentrum med kjøpesenter og koselige butikkområder. Her finner du også et blomstrende kunst- og kulturliv. Asker kulturhus har teater-/konsertsal, kino, galleri, bibliotek og mer.
Det planlegges stadig utvikling av Asker sentrum med blant annet nye boliger, forretninger, spisesteder og næringslokaler, samt åpning av Askerelva og opprettelse av bypark. I den forbindelse vil det også bli etablert ny fotballstadion i sentrum og ny idrettspark ved Borgen skole. Utbyggingen vil skje over mange år og i flere etapper.
Servicetilbud
Dagligvarehandelen kan blant annet gjøres på Extra Drengsrud, Rema 1000 Asker og Meny Trekanten. Asker sentrum har et rikt og variert utvalg av fasiliteter. Trekanten kjøpesenter er et populært samlingspunkt med 75 butikker og 800 parkeringsplasser. Holmen Senter, Sandvika Storsenter og Liertoppen kjøpesenter ligger også godt inne rekkevidde.
Området har offentlig kommunikasjon i form av buss, i tillegg til tog fra Asker stasjon. Nærmeste bussholdeplass er Skanseløkka som ligger i umiddelbar nærhet. Ved å benytte bil tar det ca. 5 min til Asker sentrum, 12 min til Sandvika Storsenter, 18 min til Lysaker, 20 min til Drammen og 25 min til Oslo S.
Fra eiendommen er det gangavstand til Drengsrud barneskole. For elever i ungdomstrinnene er det kort vei til Solvang ungdomsskole. Det finnes flere videregående skoler i nærliggende områder, samt et godt utvalg av både private og kommunale barnehager.
Eiendom / Hage
Uteområde
Eiendommen består av en eiet tomt på 782 kvm beliggende innerst i blindvei, privat og skjermet. Eiendommen leveres utvendig med gruset gårdsplass. Øvrig uteområder som bearbeides, opparbeides med matjord, klart for såing og beplanting. Plenfrø, ferdigplen, hekk, busker mv. kan bestilles på forespørsel mot tillegg.
Adkomst
Se vedlagt kartskisse på høyre side i annonsen. Ved å trykke på kartet får du enkelt tilgang til en spesifisert reiserute fra din startdestinasjon og til eiendommen. På visningsdagen vil det bli satt opp visningsskilt fra PrivatMegleren.
Bebyggelse
Standard
Entre
Boligen får et overbygd inngangsparti med downlights og støpt plate, klargjort for flislegging eller annen overflate. Den sorte ytterdøren med fem horisontale glassfelt leder inn til en innbydende entre med 60×60 cm fliser og varmekabler i gulvet. I himlingen leveres downlights med dimmefunksjon. Ved inngangen er det avsatt plass til garderobeløsning og øvrig møblement. Fra entreen er det direkte adkomst til bad, videre inn til kjøkken og stue, samt trapp opp til andre etasje. Trappen leveres fra anerkjent produsent med tette hvitlaserte eiketrinn og detaljer i dempet sort.
Kjøkken
Kjøkkenet leveres fra JKE Design, med mulighet for å velge mellom to fronter: enten steingrå matt med håndtak i børstet messing, eller en kombinasjon av Ask Sort og Eik Natur. Benkeplaten blir grå laminat uavhengig av valg. Integrerte hvitevarer inkluderer kjøleskap, oppvaskmaskin, stekeovn og induksjonstopp. Løsningen kompletteres med en praktisk kjøkkenøy med både oppbevaring og sitteplass. Gulvet legges sømløst i forlengelsen av stuen, og i himlingen settes downlights.
Stue
Stuen i første etasje er romslig og åpen mot kjøkkenet, med fleksible innredningsmuligheter for både spiseplass og sofagruppe. Store vindusflater gir flott lysinnslipp. Gulvet blir hvitpigmentert 1-stavs laminat fra Pergo (Lillehammer Pure Oak), mens vegger og himling leveres med slette, listefrie overflater. Vinduer og dører får sorte karmer. En moderne peisovn fra Nordpeis (Duo 1 eller tilsvarende) plasseres slik at flammene er synlige fra både stue og kjøkken. Fra stuen er det utgang til hagen, med mulighet for å etablere markterrasse eller annen løsning.
TV-stue
I andre etasje ligger en lys og trivelig TV-stue – perfekt som ekstra oppholdsrom for lek, avslapning eller vennebesøk. Rommet har store vinduer, 1-stavs laminatgulv og lystmalte vegger. Det kan enkelt tilpasses som hjemmekontor dersom ønskelig.
Bad
Boligen får to moderne bad med fliser i 60×60 cm Limestone Ivory på gulv og vegger. Dusjsonene får mosaikkfliser 5×5 cm i samme serie, med termostatstyrte varmekabler i gulvet. Badet i første etasje har opplegg for vaskemaskin/tørketrommel, baderomsmøbel Alterna NEA 80 cm i eik med servant, samt Alterna Bliss speil Ø 80 cm med LED. Badet i andre etasje leveres med NEA 100 cm og speil Ø 100 cm. Begge bad får vegghengt toalett med soft close sete, sorte ett-greps blandebatterier samt dusjvegger/glassdør og dusjgarnityr i sort.
Soverom
Boligen får fire lyse soverom i andre etasje, fra 11,2 til 12,9 kvm. Hovedsoverommet har tilknyttet omkledningsrom. Alle rom leveres med hvitpigmentert 1-stavs laminat, listefrie overganger og lystmalte overflater. Garderobeskap eller spilevegger er ikke inkludert, men oppbevaringsbehov dekkes av en romslig innvendig sportsbod på 9,3 kvm.
Oppvarming – Teknisk
Boligen blir bygget med strenge krav til isolasjon og inneklima. Det leveres balansert ventilasjon. Boligen får varmekabler på begge bad og i entre. I tillegg vil det etableres et Ildsted fra Nordpeis i Uno1 serien eller tilsvarende. Det leveres downlights med dimmebryter i entre, kjøkken, stue og begge bad. I overbygd inngangsparti leveres tre downlights og tre stk utelamper i sort. Varmtvannsbereder blir på 200 liter og det leveres Waterguard vannstoppsystem.
Parkering / Garasje
Det er parkering på en gruset gårdsplass. Øvrig parkering etter områdets gjeldende bestemmelser.
Garasje kan leveres som tillegg. Det leveres tomme trekkerør ut fra boligen til fremtidig garasje.
Offentlige forhold
Vei / Vann / Avløp
Boligen er tilkoblet vann/avløp i kombinasjon av offentlig og private stikkledninger. Privat avløpsdel er tilkoblet felles pumpekum med årlige vedlikeholdskostnader på ca. kr. 1 850,-.
Vi gjør oppmerksom på at private ledninger vedlikeholdes for eiers regning.
Ved overtakelse av boligen vil det være forpliktende å bidra med kostnader for brøyting, strøing og vedlikehold av felles vei. Estimert kr. 2 500,- pr. år.
Eiendommen har andeler i tre realsameier som er tinglyst på eiendommen:
Gnr. 2 bnr. 464, andel: 1/27. Eiendommen består av et grønt område samt interne privat veier.
Gnr. 2 bnr. 538, andel: 1/4.Eiendommen består av intern privat vei.
Gnr. 2 bnr. 539, andel: 1/9.Eiendommen består av intern privat vei.
Faste løpende kostnader
Vann, fastgebyr kr. 2 558,52,-
Avløp, fastgebyr kr. 2 633,04,-
Vann: kr 32,82 ,-per kbm (inkl. 15% mva)
Avløp: kr 34,95,- per kbm (inkl. 15% mva)
Årlig tilsynsgebyr ildsted kr. 205,-.
Renovasjon ca. kr. 4 000,- pr år.
Estimert strømforbruk årlig: 15 000 kWh som utgjør ca. kr. 25 500,-.
Det må påberegnes kostnader til vedlikehold, brøyting og strøing av interne privat veier, ca. kr. 2 500,- pr år.
Privat avløpsdel er tilkoblet felles pumpekum med årlige vedlikeholdskostnader på ca. kr. 1 850,-.
Det må påberegnes kostnader til strøm, tv, internett, innboforsikring og bygningsforsikring.
Utgiftene vil variere avhengig av antall familiemedlemmer i husstanden, ønsket innetemperatur, egne fordelsavtaler, kanalvalg, hastighet på internett etc.
Ferdigattest eller midl. brukstillatelse
Ferdigattest vil normalt ikke foreligge ved overtakelse. Selger skal fremskaffe midlertidig brukstillatelse for Eiendommen før overlevering til Kjøper. Ved overtakelse mot midlertidig brukstillatelse, er eiendomsmegler forpliktet til å gjøre Kjøper oppmerksom på at det bør etableres tilstrekkelig sikkerhet for Kjøpers krav. Eiendomsmegler skal deretter bistå partene med å etablere tilfredsstillende sikkerhet som ivaretar Kjøpers interesser. Dersom arbeidene forsinkes av forhold utenfor Selgers kontroll har Selger krav på fristforlengelse, jf. buofl § 11. Selger plikter i så fall å varsle Kjøper skriftlig så snart Selger blir oppmerksom på at dette kan skje. Dersom selgeren er forsinket i henhold til buofl. § 17, kan forbrukeren etter lovens kapittel III kreve dag- mulkt, holde igjen vederlag, kreve erstatning eller heve avtalen.
Verdi ved skattefastsetting
Formuesverdien på eiendommen er ikke fastsatt. Formuesverdien fastsettes med utgangspunkt i en kvadratmeterpris som beregnes av Statistisk Sentralbyrå (SSB). Kvadratmeterprisen skal gi uttrykk for en estimert markedsverdi pr. kvadratmeter og bygger på statistiske opplysninger om omsatte boliger (boligtype, areal, geografisk beliggenhet og alder). Ut fra kvadratmeterprisene til SSB fastsetter Skatteetaten årlige kvadratmetersatser.
Formuesverdien er ulik for primærbolig og sekundærbolig.
Reguleringsforhold
KOMMUNEPLANER
Id 2020100
Navn Kommuneplan for Asker 2023 – 2035
Plantype Kommuneplanens arealdel
Status Endelig vedtatt arealplan
Ikrafttredelse 13.06.2023
Delareal 2 m
ArealbrukLNRF areal for nødvendige tiltak for landbruk og reindrift og gårdstilknyttet næringsvirksomhet basert på gårdens ressursgrunnlag,Nåværende
Delareal 783 m
BestemmelseOmrådenavn#8 Nullvekst nord
KPBestemmelseHjemmel byggegrenser, utbyggingsvolum og funksjonskrav
Delareal 2 m
KPAngittHensyn Bevaring naturmiljø
KPHensynsonenavnH560_1
Delareal 780 m
ArealbrukBoligbebyggelse,Framtidig
KOMMUNEPLANER UNDER ARBEID
Id 202518
Navn Kommuneplanens arealdel 2027 – 2039
Status Planlegging igangsatt
Plantype Kommuneplanens arealdel
REGULERINGSPLANER
Id 022011D
Navn Finsrud – Høgåsveien
Plantype Eldre reguleringsplan
Status Endelig vedtatt arealplan
Ikrafttredelse 24.05.1989
Delareal 783 m 2
Formål Frittliggende småhusbebyggelse
Reguleringsplan for området Finsrud-Høgåsveien – Del av gnr.2 og 9. Bestemmelser ligger vedlagt i salgsoppgaven.
Kommuneplanen datert 06.05.2025 ligger ikke vedlagt i prospektet. Denne kan leses på kommunens hjemmeside, prospektets hjemmeside eller den kan hentes i eiendommens annonse på Finn.no. Kan også fåes ved henvendelse til megler.
Energimerking
Energi- og oppvarmingskarakter foreligger ikke p.t. Energiattester vil bli utarbeidet av selger i samarbeid med utførende entreprenør etter at detaljprosjekteringen er gjennomført. Etter dette vil energiattester for den enkelte bolig kunne innhentes hos megler.
Diverse
Tinglyste rettigheter og forpliktelser
Kommunen har legalpant som sikkerhet for betaling av kommunale avgifter. Legalpant er pant som følger av loven, og som ikke tinglyses. Legalpant følger derfor eiendommen ved salg. På eiendommen kan det være tinglyst erklæringer som f eks rett for kommunen til å vedlikeholde rørsystemer for vann- og kloakk. Disse erklæringene vil følge eiendommen ved salg. Kontakt megler for nærmere informasjon.
Servitutter / rettigheter
Eiendommen overdras fri for pengeheftelser, med unntak av eventuelle erklæringer, avtaler, servitutter og panteheftelser som fremgår av salgsoppgaven og skal følge med eiendommen ved salg. Kjøpers bank vil få prioritet etter disse.
Dagboknr.: 900119
Bestemmelse om vannrett
Overført fra: 3025-2/2
Gjelder denne registerenheten med flere
Dagboknr.: 900319
Bestemmelse om vannledn.
Overført fra: 3025-2/2
Gjelder denne registerenheten med flere
Dagboknr.: 900187
Bestemmelse om vannrett
Overført fra: 3025-2/2
Gjelder denne registerenheten med flere
Dagboknr.: 12073
Erklæring/avtale
Grensegangssak
Overført fra: 3025-2/2
Gjelder denne registerenheten med flere
Dagboknr.: 27877
Bestemmelse om vann/kloakk
Kan ikke slettes uten samtykke fra:ASKER KOMMUNE
Org.nr: 920125298
inklusive pumpestasjon og fordrøyningsmagasin
Gjelder denne registerenheten med flere
Dagboknr.: 27901
Bestemmelse om vann/kloakk
Kan ikke slettes uten samtykke fra: Asker kommune
Org.nr. Org.nr: 920125298
Rettighetshaver: Knr: 3203 Gnr. 2 Bnr: 526
Rettighetshaver: Knr: 3203 Gnr. 2 Bnr: 527
Rettighetshaver: Knr: 3203 Gnr. 2 Bnr: 528
Rettighetshaver: Knr: 3203 Gnr. 2 Bnr: 529
Rettighetshaver: Knr: 3203 Gnr. 2 Bnr: 530
Rettighetshaver: Knr: 3203 Gnr. 2 Bnr: 531
Rettighetshaver: Knr: 3203 Gnr. 2 Bnr: 532
Rettighetshaver: Knr: 3203 Gnr. 2 Bnr: 533
Rettighetshaver: Knr: 3203 Gnr. 2 Bnr: 534
Bestemmelser stikkledninger overvann, drenskum og fordrøyningsmagasin
Bestemmelse om vedlikehold av anlegg/ledninger
Tinglyste servitutter ligger vedlagt i salgsoppgaven.
Annen nyttig informasjon
Alle innvendige og utvendige arealangivelser er hentet fra vedlagte tegninger.
Det gjøres oppmerksom på at megler ikke har innhentet særskilte opplysninger om det finnes pålegg fra brann/feiervesen på eiendommen. Det er ikke foretatt undersøkelse av det elektriske anlegget. Med mindre annet er uttrykkelig avtalt gjelder NEFs normgivende liste over løsøre og tilbehør.
Adgang til utleie
Eiendommen kan i sin helhet fritt leies ut til boligformål.
Det vil normalt være anledning til utleie av hele eiendommen eller enkeltrom så fremt arealet er godkjent for varig opphold iht. plan- og bygningsloven og har forsvarlig radonnivå.
Det er ingen egen utleiedel i boligen.
Konsesjon / Odel
Det er ingen konsesjon eller odel som hefter på eiendommen.
Øvrige kjøpsforhold
Boligkjøperforsikring
I produktark om boligkjøperforsikring bak i salgsoppgaven, finner du informasjon samt priser på produktene.
Planlagt overtagelse
Planlagt påbegynnelse av boligen er høsten 2025, og estimert ferdigstillelse blir dermed 1.kvartal 2026.
Dog er ikke dette å anse som et endelig leveringstidspunkt. Selger forbeholder seg retten til å kunne overlevere tidligere dersom fremdriften tillater det og dette synes hensiktsmessig.
Selgers forbehold
Det tas forbehold om feil i leveransebeskrivelsen og mulighet for små justeringer i materialvalg/utstyr som dører, ildsted mm. uten at dette forringer kvaliteten.
En må påregne mindre justeringer i forbindelse med endelig prosjektering og opparbeidelse av eiendommen. Nedforinger, dragere, søyler og innkassinger i himling fremkommer ikke nødvendigvis på tegningene, og vi forsøker i størst mulig grad å unngå dette.
Perspektiver og 3D tegninger er kun av illustrativ karakter og definerer ikke det nøyaktige innhold eller omfanget av leveransen. Dvs. hekker, beplantning, plen, utvendig/innvendig møblering, gjerder mm. er ikke en del av leveransen. Den videre detaljprosjekteringen kan medføre endringer som er nødvendige eller hensiktsmessige.
I nye bygg vil det oppstå svinnriss i maling, tapet mv. ved skjøter og sammenføyinger, dels på grunn av uttørking av materialer og temperatursvingninger. Det påpekes spesielt at svinnriss og sprekker i materialoverganger mellom tak og vegg og i hjørner, ikke kan forlanges utbedret så lenge disse ikke innebærer avvik fra god håndverksmessig standard.
Lister, karmer og gerikter leveres fabrikkbehandlet med synlige spiker-, spikerhull og skjøter. Det vil kunne forekomme små kosmetiske merker på dør og vinduskarmer, gulv, trapper etc. som ikke nødvendigvis vil bli utbedret. I de tilfeller små kosmetiske merker utbedres, vil det forekomme avvik i glans og struktur.
Parkett og laminat anses som levende materiale og vil dermed kunne bevege seg avhengig av årstid. Enkelte svikt m/bevegelse, mindre sprekker og lyd på enkelte tider av året kan oppstå som følge av dette. Utbygger tar intet ansvar for ovennevnte eller skader på parkett/laminat som følge av feil bruk eller for høy/lav luftfuktighet og/eller temperatur på varmesystemet.
Kjøper oppfordres og er forpliktet til å sette seg inn i de drift- og vedlikeholdsoppgaver som følger med som eier av boligen (FDV – forvaltning, drift og vedlikehold). FDV dokumentasjon leveres på boligmappa.no og følger boligen ved overlevering.
Skjeggkre er et beslektet insekt av sølvkre som lever kun innendørs og trives best ved høy fuktighet, men sammenlignet med sølvkre kan de klare seg også i tørrere miljøer. Skjeggkre er observert i bygg over hele landet, og mange av funnene er fra nyere og moderne boliger. Selv om det per i dag ikke er en kjent metode for å utrydde skjeggkre, finnes det tiltak som bringer forekomst av skjeggkre ned på et akseptabelt nivå og anbefalte tiltak er bl.a. hypping renhold for å fjerne næringstilgangen. Skjeggkre gjør liten skade, men kan virke sjenerende. Selger tar ikke ansvaret for skjeggkre i boligen. Boligen leveres med innvendig byggvask, dvs. overflaterengjøring av støv, samt grovvask av vinduer utvendig og innvendig.
Boligen leveres etter TEK17.
Solgt ihht bustadoppføringsloven
Boligene selges i henhold til Bustadoppføringslova som regulerer kjøpers (forbrukers) rettigheter og plikter ved avtale om oppføring av bolig og kjøp av fast eiendom der bygningen ikke er fullført når avtalen inngås. Ved salg til aksjeselskap legges Avhendingslovens bestemmelser til grunn. For øvrig gjelder Lov om eierseksjoner for eierseksjonssameiet og driften av dette.
Forsikring
Frem til overtagelse vil eiendommen være forsikret av selger. Det er kjøpers ansvar å påse at eiendommen er fullverdiforsikret etter overtagelse.
Budgiving
Alle bud/kjøpetilbud på eiendommen skal være skriftlig og sendes meglerforetaket pr. fax, mail, sms eller via vår “gi bud”-knapp på våre nettsider. Knappen finner du også på Privatmeglerens hjemmeside for prosjektet, se på den enkelte bolig.
Nærmere info om budgiving finner du på egen side sammen med kjøpetilbud/budskjema.
Som budgiver hos Privatmegleren kan du kreve budjournal fremlagt så snart handel er gjennomført.
Innhold i budjournal er lovregulert, og innebærer at budgivere må akseptere at opplysninger om budet kan bli fremlagt for selger, kjøper og øvrige budgivere. Budgiver som ikke blir kjøper, kan kreve kopi av anonymisert budjournal.

















