-
Velkommen til Solfaret! -
-
-
-
-
-
-
-
-
-
-
-
-
-
-
-
-
-
-
-
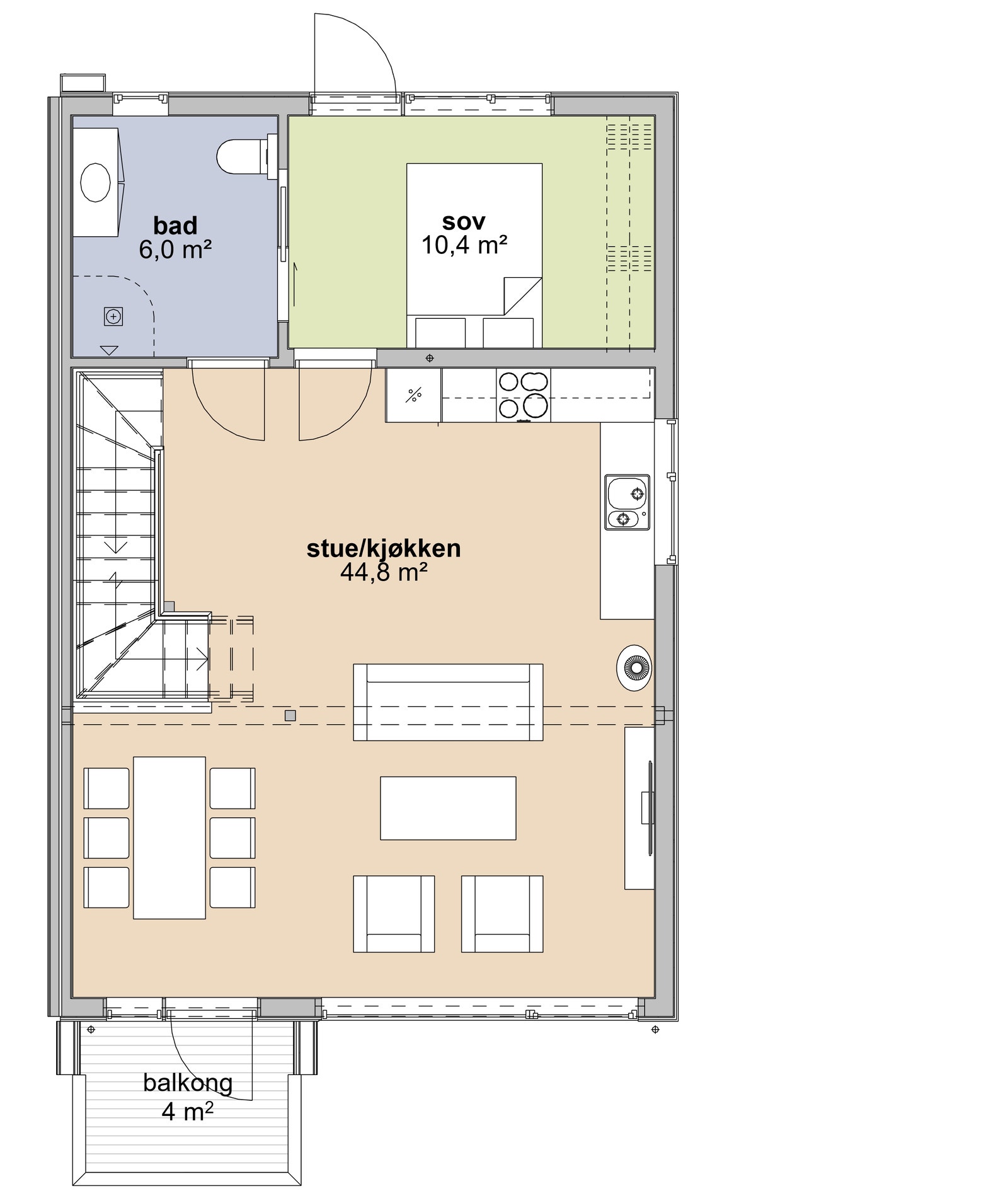
1.etasje -
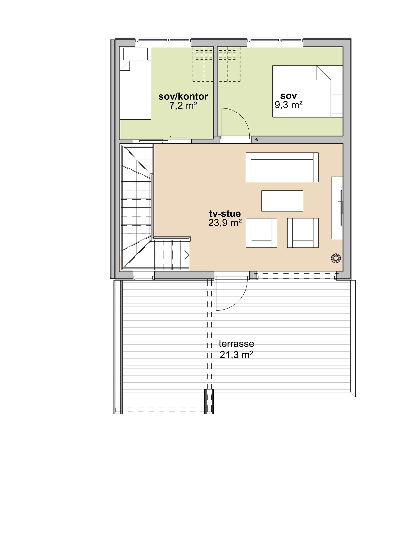
2.etasje -
3.etasje
Innflytningsklart rekkehus med solrik takterrasse og hele fem soverom og to bad + vaskerom og to parkeringsplasser.
Nord-Ladderudvegen 83C, 2070 Råholt- Priskr 5 900 000
- Boligtype Rekkehus
- Bruks areal (BRA) 165 m²
- Soverom 5 (5)
Kort fortalt
- Familiebolig med hele fem soverom, to stuer, to bad, vaskerom og to P-plasser.
- Rekkehus med garasjekjeller. Heisadkomst fra garasjekjeller til fellesarealer.
- Nybygg med 5 års garanti, lav dokumentavgift og lave forutsigbare vedlikeholdsutgifter
- Muligheter for å kjøpe ekstra garasjeplass
- Bilfritt tun for lek og moro, sosialt samlingspunkt for barn og voksne
- Vestvendt og solrik beliggenhet samt takterrasse
- Kort vei til buss og tog
- Varmekabel med gulvføler på våtrom og i entré
- Kjøkken fra kvalitetsleverandøren Sigdal
- Peisovn fra Schiedel type Sirius 1 samt elektrisk oppvarming
- To gjesteparkeringer i felles garasjeanlegg
Om boligen
Entré:
Boligen har en romslig og flislagt entré med varmekabler i gulv. Her er det god plass til oppbevaring av sko og yttertøy.
I boligens øverste etasje har du en ekstra stue, perfekt om man ønsker å trekke seg litt tilbake eller for de minste. Fra loftstuen er det utgang til boligens takterrasse.
Kjøkken:
Moderne og lekkert kjøkken fra kvalitetsleverandøren Sigdal med integrerte hvitevarer.
Boligen har en åpen stue- og kjøkkenløsning med store vindusflater mot vest.
Våtrom:
Boligen har to bad, begge flislagte med varmekabler i gulv. På begge bad er det vegghengt toalett, dusj med innfellbare glassvegger og servant med skuffer. På bad i underetasjen er det avsatt plass for badekar.
Boligen har et separat vaskerom med utslagsvask, ventilasjon og varmtvannsbereder. Her er det god plass til både vaskemaskin og tørketrommel.
Soverom:
Det er totalt fem soverom. Hovedsoverommet i hovedetasjen har skyvedør til bad samt utgang til terrasse på baksiden av boligen.
Beliggenhet – Hvorfor Solfaret?
Solfaret vil ha en barnevennlig og solrik beliggenhet innerst i en blindvei. Beliggenheten er perfekt for barnefamilien eller for deg som ønsker en roligere hverdag, samtidig som du har kort vei til Råholt sentrum. Råholt kan by på et bredt servicetilbud hvor du har alt du trenger av butikker, spisesteder, barnehager og skoler. Det er også meget gode buss -og togforbindelser til blant annet Oslo (30 min), Lillestrøm (19 min) og Gardermoen (5 min) fra Eidsvoll verk stasjon.
Sentrum og servicetilbud
I Råholt sentrum finner du AMFI Eidsvoll, et kjøpesenter med totalt 50 butikker og spisesteder. Her finner du også apotek, interiørbutikker, vinmonopol og jernvarehandel. Det ligger flere matbutikker i nærområdet, som Coop Ekstra m/post i butikk, Rema 1000, Kiwi og Spar. Europris ligger også sentralt til på Råholt.
Det finnes flere restauranter på Råholt. City Thai kan friste med asiatiske smaker, på Ristorante Milano får du italienske og meksikanske retter, og på Sushi Asia Giang får du nydelig sushi. Utover dette byr området også på serveringsstedene Café Bella, Jafs, Råholt Pizza, New Kebabish og Kafe Standpunkt.
Eidsvoll kommune har et rikt kulturtilbud med bibliotek, kulturskole, konserter, forestillinger og foredrag. Det er kort vei til både Jessheim, Lillestrøm og Oslo, som byr på flere gode matog kulturopplevelser.
Fritidstilbud
Fra Solfaret er det kort vei til fine turområder sommer som vinter; Hurdalsjøen med småbåthavn, Eidsvoll Verk med gode skiløyper (inkl. lysløype), samt turløyper opp til blant annet Mistberget (663 moh), for å nevne noe. Eidsvoll kommune har flotte badeplasser ved Hurdalssjøen, Langton og Prestsand. Det er også flere treningssenter i umiddelbar nærhet, som Mova Råholt og Letohallen, Vida Fitness og fitnespoint. Ved Letohallen finnes også Høyt Under Taket klatrepark samt en nyere Padel Hall.
Like i nærheten ligger Eidsvollsbygningen, som er et av Norges fremste nasjonalsymboler. Her kan du få omvisninger, gå en kultursti
langs området eller besøke Kafé Standpunkt. I sommermånedene kan du ta turen langs Mjøsa med Skibladner, som er verdens eldste operative hjuldamper i rutegående trafikk. Den går mellom Eidsvoll og Lillehammer.
For barn er det flere fritidsaktiviteter å velge i. Området byr på alt fra skolekorps, fotball, håndball, ski, Speideren, 4H, paintball, dansing, basketball, turn med mer. I umiddelbar nærhet finner man Råholt bad, et toppmoderne svømmeanlegg med flere basseng- og vannaktiviteter.
Skole og barnehage
Råholt er et familie- og barnevennlig område med flere skoler og barnehager i nærheten. Av barnehager kan Læringsverkstedet, Veslebrunen Steinerbarnehage og Råholtbråtan nevnes. Området sokner til Råholt barneskole og Råholt ungdomsskole.
Kollektivtilbud
På Råholt får du et fantastisk kollektivtilbud med både tog og buss. Fra togstasjonen Eidsvoll Verk tar det 30 minutter til Oslo sentralstasjon, 19 minutter til Lillestrøm og 5 minutter til
Gardermoen hovedflyplass. Nærmeste busstopp er Ladderud som ligger 5 minutters gange fra Solfaret. Fra busstoppet tar det 4 minutter til Råholt senter, 5 minutter til togstasjonen, 25 minutter til Jessheim og 26 minutter til Sundet i Eidsvoll sentrum. I tillegg er det kort vei til E6, noe som gjør det enkelt å komme seg rundt med bil.
Avstander i bil
Gardermoen 15 minutter
Jessheim 15 minutter
Lillestrøm 30 minutter
Eidsvoll 15 minutter
Hamar 55 minutter
Oslo 40 minutter




