-
Illustrasjons bilde fra ferdigbygget enhet. -
-
Illustrasjonsbilde av tilsvarende enhet -
Illustrasjonsbilde av tilsvarende enhet -
Det vil leveres en stilren og effektiv peisovn i hovedplan -
Stue i hovedplan (illustrasjonsbilde) -
Kjøkken vil bli levert av Sigdal. Her er det mulig med tilvalg. -
-
Hyggelig stue i 2. plan. Illsutrasjonsbilde -
Entré med plass til møblement -
Illustrasjonsbilde av ferdigbygget bolig. -
Boligen får hele 4 soverom -
Illustrasjonsbilde av ferdigbygget bolig. -
Illustrasjonsbilde av ferdigbygget bolig. -
Badet vil leveres flislagt med varmekabler i gulv -
Stilren innredning med skuffer. -
-
-
-
Kun 1 igjen! Familiebolig over tre plan med hele fire soverom og to stuer. P-plass i garasjeanlegg.
Ramstaddammen 16D, 2033 Åsgreina- Priskr 4 750 000
- Boligtype Rekkehus
- Bruks areal (BRA) 136 m²
- Soverom 4 (4)
Kort fortalt
- Familiebolig med fire soverom, to stuer og ett bad og et WC
- Parkeringsplass i garasjekjeller
- Egen hage med terrasseplatting
- Nybygg med 5 års reklamasjonsrett, lav dokumentavgift og lave forutsigbare vedlikeholdsutgifter
- Gode solforhold
- Kort gangvei til barnehage og skole
- Turområder i umiddelbar nærhet
- Varmekabel i hele 1.etasje samt bad i 3.etasje.
- Tidløse fliser på våtrom og i entré
- Kjøkken fra kvalitetsleverandøren Sigdal
- Peisovn fra Schiedel type Sirius 1
Boligen
Merk at boligen ikke er ferdigstilt og vil fremstå uferdig på visning. Bilder er av tilsvarende enhet som er ferdig og overlevert. Kun til illustrasjon.
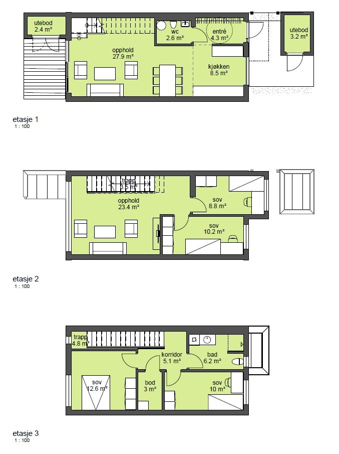
BRA 136 kvm BRA-I 133 kvm
1. etasje: Entré, wc, kjøkken og stue.
2. etasje: Stue og to soverom.
3. etasje: To soverom, bad og bod.
Entré:
Rekkehuset har flislagt entre med varmekabler i gulv.
Kjøkken:
Lekkert og tidsriktig kjøkken fra Sigdal med integrerte hvitevarer som platetopp, ovn, oppvaskmaskin og kjøleskap med frys.
Det vil være mulig å gjøre endringer på kjøkkenet innenfor kjøkkenleverandørens (Sigdal) sortiment.
Bad/vaskerom:
Flislagte bad med varmekabel i gulv. Grå fliser på gulv og hvite fliser på vegger. Servant med underskap, toalett og dusj med glassvegger.
Det kan gjøres endringer på baderomsinnredning (leverandør Comfort) og fliser (leverandør FagFlis Kløfta).
Oppbevaring:
Boligen har en innvendig bod samt to utvendige boder. Det leveres ikke garderobeskap, men dette kan bestilles som tilvalg hos Sigdal.
Beliggenhet
Idyllisk, trygt og sentralt er ord som beskriver Ramstadtunet godt. Her kan barn leke rett utenfor boligen, og det er gode naturopplevelser rett utenfor døren for store og små. På Ramstad bor du tett på naturen, samtidig som at det er en kort kjøretur til Oslo Lufthavn Gardermoen og E6.
Ramstadåsen i Åsgreina er et områdene med varierende bebyggelse, noe som gir et mangfold av mennesker og et spennende nabolag. Området passer for de fleste, unge som eldre, familier som enslige. Feltet vil by på svært gode og trygge oppvekstsvilkår for barn med gangavstand til barnehager, barneskole og flere flotte lekeområder. Det er kort vei til dagligvarer og bussholdeplass, samt en rask kjøretur til både Nannestad, Gardermoen, Jessheim og Gjerdrum/Skedsmo.
På kort tid har Ramstadåsen i blitt et attraktivt boligområde i Nannestad kommune. Åsgreina ligger sentralt i forhold til Gjerdrum, Jessheim og Gardermoen, noe som gjør det til et attraktivt sted å bosette seg for mennesker i alle aldre og livssituasjoner.
Et steinkast fra feltet ligger Åsgreina barnehage, og det er fortau bort til Kringler-Slattum barneskole. Skal du til jobb er det enkelt å sette av ungene på veien, og å hente de når du kommer hjem. Tryggheten for ungene er suveren, og naboskapet er godt. Det er lett for barna å finne nye venner og sammen kan de enkelt gå til skole og barnehage uten å være redde. På Ramstadtunet kan du leve fredelig og litt tilbaketrukket, samtidig som du har kort vei til alt du trenger og mange aktivitetsmuligheter for både store og små.
Selv om det er kort vei til storbyen, er landligheten med Romeriksåsen som nærmeste nabo nesten uslåelig. Fra eiendommen er det umiddelbar nærhet til flotte tur- og rekreasjonsområder. Tenk det. Frisk og god luft, uten støy og tung trafikk susende forbi. Du kan bare sette deg på sykkelsetet og ta av gårde, eller du kan snøre turskoa og gå ut i marka på stier som starter like utenfor utgangsdøra. Området er rikt på både bær og sopp, og det er mange fiskevann innover i marka. Den Norske Turistforening har en rekke hytter åpne for servering. Er det vinter byttes tursko ut med skisko, og skiene hentes fram fra boden. Er du og dine i humør for litt fart, er det bare å finne fram kjelken, eller dra til nærmeste slalåmbakke. Kommer sola fram og dere vil slappe av er det bare å nyte dagen på terrassen.
Nærmeste bykjerne er Jessheim. Der finner du alt du trenger, fra kjøpesenter med 145 butikker, rådhus og restauranter, til togstasjon, idrettshall, skøytebane, stadion, videregående skole, kino og kulturhus. Det er også kort vei fra Ramstadtunet til Nannestad, hvor det er blant annet idrettshall og videregående skole. Høyskolen i Akershus ligger på Kjeller ved Lillestrøm, omtrent 20 minutters kjøring unna.
Diverse
Estimert ferdigstillelse:
Boligen er under bygging vil være ferdig ca. 6 måneder fra signert kontrakt.
Felleskostnader:
Felleskostnader til Ramstadtunet sameie estimert til ca. 3 500 kr per mnd. Felleskostnader vil bl.a. inkludere forretningsførsel, vaktmestertjenester, drift og vedlikehold, felles bygningsforsikring, strøm fellesarealer, tv og internett.
Annet:
Selger forbeholder seg retten til å foreta endringer i materialvalg og/eller i konstruksjonen, dersom dette er nødvendig eller hensiktsmessig f.eks. på grunn av forhold i offentlige vedtak eller detaljprosjekteringen. Endringene skal ikke medføre vesentlig endring i byggets tilsiktede kvalitet eller funksjon.
Alle illustrasjonsfoto er å forstå som veiledende.
Omkostninger
Dokumentavgift 22 500,-
Oppstartskapital til sameiet 7 000,-
Tinglysningsgebyr for skjøte 545,-
Tinglysningsgebyr pantobligasjon pr. stk. 545,-
Pantattest 297,-
Totalt: 30 887,-




