-
Fasade nord 6-mannsbolig – Nord -
Fasade sør 6-mannsbolig – Sør -
Baderom 6-mannsbolig -
Stue/kjøkken -
-
-
Fasade 6-mannsbolig – Sør -
Fasade 6-mannsbolig – Nord -
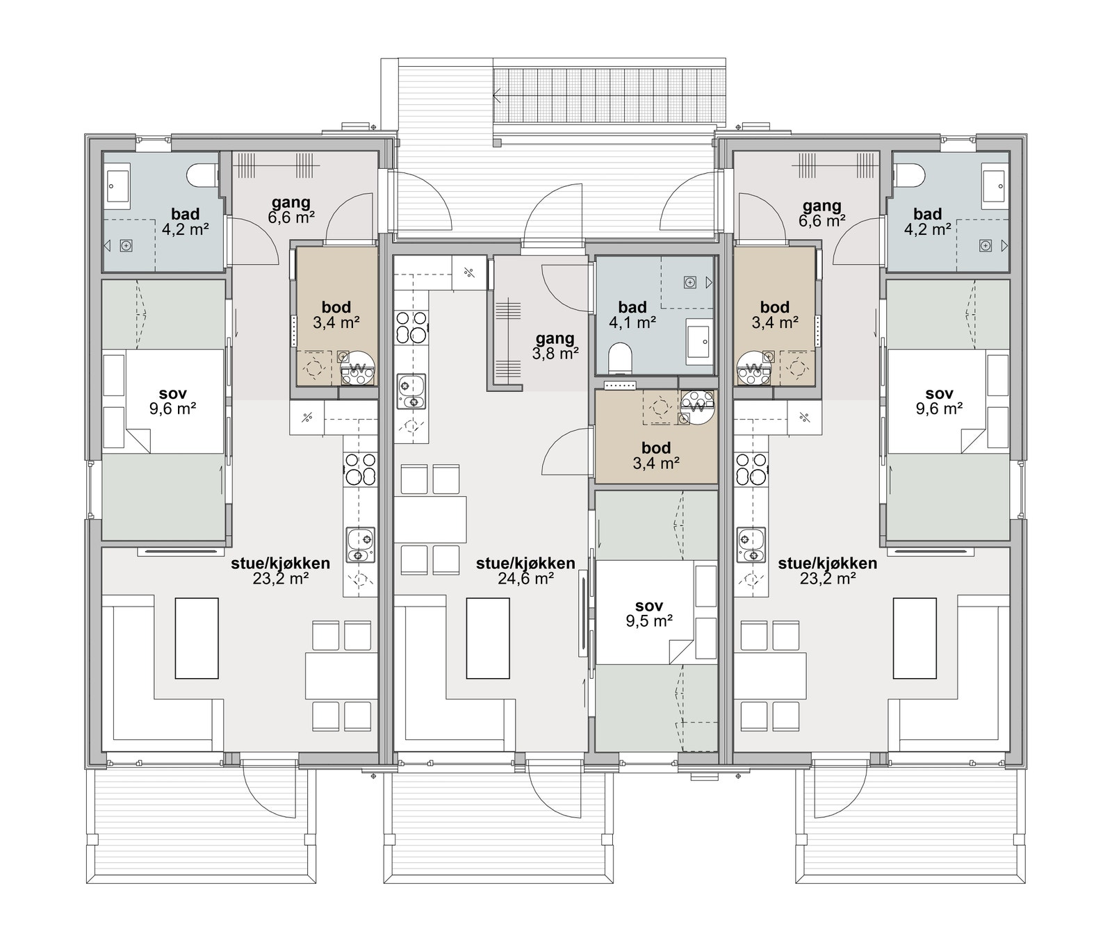
Planløsning 6-mannsbolig. fra 48m² (1 etg.) -
Planløsning 6-mannsbolig. fra 48m² (2 etg.) -
Smarte og lettstelte leiligheter for alle aldre.
-
Fleksible leiligheter med komfort og tilgjengelighet i fokus.
-
Firemannsbolig – Illustrasjonen er veiledende og endringer kan forekomme
-
Åttemannsbolig – Illustrasjonen er veiledende og endringer kan forekomme
-
Åpen stue- og kjøkkenløsning
-
Planløsning, eksempel leilighet m/2 sov.
-
Planløsning, eksempel leilighet m/2 sov.
-
Leilighet m/3 sov. (alt). -
10 minutter å gå til Sund Senter
-
4 minutter med bil
-
10 minutter å gå til skolen
Hammarsland, øygarden, sund, rimelige leiligheter: Bo godt! Enten du er i startgropa eller ønsker noe enklere, smarte og moderne leiligheter for alle aldre.
Hammarslandsdalen, 5382 SkogsvågPå Hammarsland bygger vi leiligheter for de som er i starten og vil inn på boligmarkedet og for de som ønsker en enklere hverdag med mindre vedlikehold og nærhet til kjøpesenter med alle fasiliteter.
Prisantydning
2 880 000 – 3 670 000 kr
Totalpris
2 908 305 – 3 698 305 kr
Nyttige lenker
Leiligheter
Vi kjører 0-100 finansiering på leilighetene, dvs. kr. 0,- i innskudd og 100% betaling ved overtakelse.
Leilighetene leveres nøkkelferdig og har et bruksareal fra 48m² til 65m². Noen av leilighetene har en romslig, åpen stue- og kjøkkenløsning på over 30 m²
leilighetene kan leveres med ett, to eller tre soverom, samt bad og bod.
For leilighetene på bakkeplan medfølger utvendig treplanting, mens det for leilighetene i annen etasje medfølger balkong.
BRA-i: fra 48 til 65 m²
BRA-e: 5 m²
Leilighetene består av fire-, seks-, og åttemannsboliger fordelt på feltet.
Rom til å nyte natur og nærmiljøet
Hammarsland Nord ligger sentralt sør i Øygarden kommune , med alle nødvendige fasiliteter i umiddelbar nærhet. Boligene omkranses av naturskjønne omgivelser, hvor tur i skog og mark er rett utenfor døren.
I gangavstand ligger skole, barnehager, butikker, servicetilbud og bussholdeplass. Et steinkast unna ligger Sund Senter. Her finner du dagligvarer, apotek, vinmonopol, jernvare, blomster, frisør m.m.
I nærområdet ligger også Sund Sportsklubb. Sportsklubben driver med fotball, futsal og håndball. Øygarden kommune har et stort utvalg av aktiviteter, arrangementer og fritidstilbud for både store og små. Med kort reisevei til både Bergen sentrum og Sartor Storsenter, er dette et ypperlig sted å bosette seg.
Hammarsland Nord er også attraktivt for seniorer, med leilighetene hvor tilgjengelighets krav er ivaretatt.
Av aktiviteter i nærområdet er det Seniordans i skogsskiftet, Seniortreff på aktivitetssenteret i Skogsvåg hvor det holdes Bingo, Quiz og sang. Sund Senter har også samarbeid med TREFF+.
Hvorfor kjøpe nytt?
Det er mange gode grunner til å investere i en helt ny bolig. Først og fremst er det noe helt spesielt med å flytte inn i et splitter nytt hjem, der ingen andre har bodd før.
- Lavere kjøpsomkostninger
For nye boliger betaler du kun 2,5% av tomteverdien i motsetning til brukt bolig hvor du betaler 2,5% av den totale boligverdien.
- Kjøp til fastpris
Du slipper stressende budrunder, og får kjøpe bolig til en fast pris.
- 5 års reklamasjonsrett ved kjøp av nybygg
Når du kjøper en helt ny bolig har du en lovfestet reklamasjonsrett i 5 år, som sikrer deg utbedring av eventuelle feil og mangler. I tillegg tar vi en gjennomgang av boligen sammen med deg ett år etter overtakelsen, slik at eventuelle feil rettes opp.
- Alt er splitter nytt
Det er en god følelse å flytte inn i en helt ny bolig. Her har det ikke bodd noen før, og du starter med blanke ark.
- Lite oppussing
Du slipper å tenke på oppussing. Dette gir rom for mer fritid og lavere kostnader.
- Sett ditt personlige preg på boligen
Det er mulig å gjøre visse tilvalg og endringer, slik at du selv kan skreddersy boligen etter eget behov og ønsker!
- Potensiell prisstigning
Siden du gjerne kjøper bolig ett eller to år før ferdigstillelse, kan du potensielt få med deg en verdiøkning på hele boligen før du overtar.
- Miljøvennlig og økonomisk
En ny bolig har et lavere energiforbruk enn en eldre bolig. De tekniske kravene som husene bygges etter i dag, er med å gi boligene bedre inneklima, isolasjon og generelt høyere kvalitet.
- Bedre tid til salg av eksisterende bolig
Ettersom overtagelse dato gjerne er litt frem i tid, kan du legge opp salget av nåværende bolig i takt med ferdigstillelse av den nye boligen.
Vi i Hellvik Hus har valgt «Bygg med glede» som vårt motto – fordi målet vårt er å gjøre byggeprosessen til en trivelig affære for deg og dine. Som kunde hos oss skal du oppleve samarbeidet som godt og trygt helt fra det første møtet og fram til boligen står ferdig.
Annet
Fellesutgifter
Månedlige felleskostnader fordeles mellom alle boenheter i prosjektet, og er estimert til kroner 945 pr. boenhet for første driftsår. Etter sameiet er opprettet står beboerne i fellesskap fritt til å gjøre endringer i budsjettpostene.
Fellesutgifter inkluderer: Forsikring av byggene, inkludert carporter/boder Snøbrøyting/strøing Strøm i fellesareal Felles vannposter Vedlikehold/sparing til sameiet
Oppstart kapital er satt til kr. 23 000,- (inkludert i omkostningene).
Utbygger tar forbehold og presiserer at salgsmateriell / markedsføring slik som for eksempel prospekt, nettside mm kun er veiledende /uforpliktende og at det kan bli endringer både mht boligtyper og andre detaljer etter hvert som salg og fremdrift skrider frem.