-
-
-
-
-
-
-
-
Illustrasjons bilde er ikke av den prosjekterte boligen. illustrerer løfte plattformen. -
Illustrasjons bilde av løfte plattform -
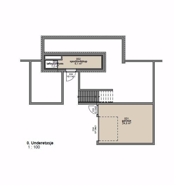
U.etg -
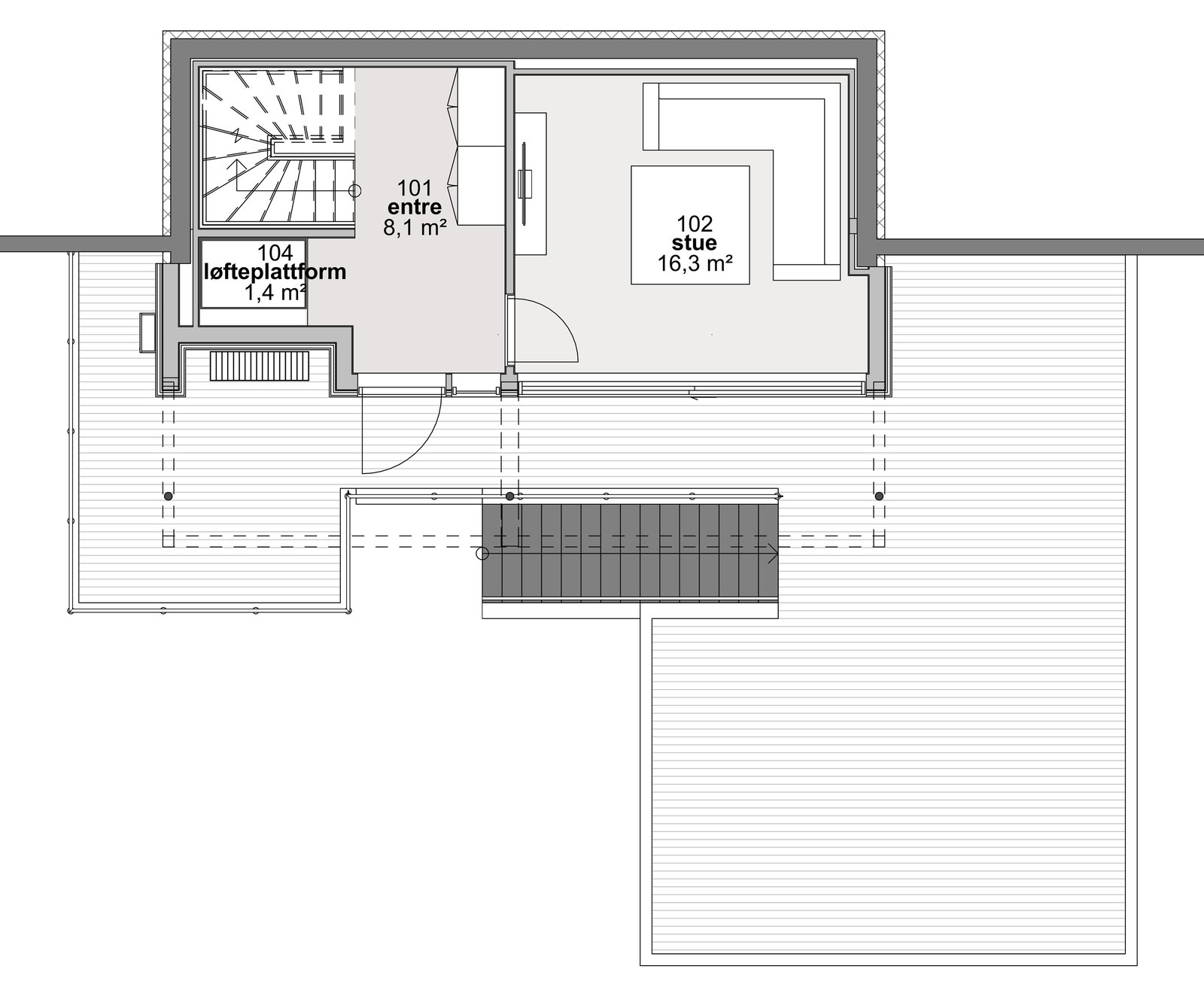
1.etg -
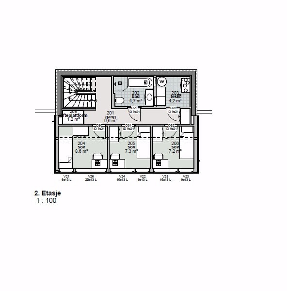
2.etg -
3.etg
NYHET | Villa med utsikt – Sjelden skatt av en eiendom | Sentralt & Attraktivt område| 4 sov| 2 bad | 2 stuer
Årstadfjellveien 9, 4370 Egersund- Priskr 12 900 000
- Boligtype Enebolig
- Bruks areal (BRA) 167 m²
- Soverom 4 (4)
Beskrivelse
Hellvik Hus presenterer en svært eksklusiv villa i Årstadfjellveien 9 – et høytliggende og ettertraktet boligområde som kombinerer ro, utsikt og nærhet til byen på en måte som gjør denne eiendommen til noe helt for seg selv. Fra store vindusflater får du inn rikelig med lys og en utsikt som strekker seg mot både natur, bymiljø og det varierte landskapet Egersund er så kjent for.
Her bor du få minutter fra Egersund sentrum – en av Norges mest sjarmerende trehus byer, med restauranter, koselige kafeer, nisje butikker og et levende bymiljø gjennom hele året. Samtidig har du enkel tilgang til flotte turmuligheter, blant annet i Vannbassengan med merkede løyper og naturskjønne utsiktspunkt, og nærhet til ikoniske attraksjoner som Trollpikken og Eigerøy fyr.
Boligene i området holder gjennomgående høy standard, og nabolaget er etablert, ryddig og svært godt likt. Denne villaen bygger videre på det uttrykket: moderne arkitektur, gode materialvalg, store glassflater og en planløsning som gir både komfort og karakter.
3. etasje
- Stue/kjøkken med store vindusflater og balkong
- Hovedsoverom m/ eget bad
- Trapp + løfteplattform helt opp
2. etasje
- 3 romslige soverom
- Bad
- Teknisk rom
- Gang, trapp og løfteplattform
1. etasje
- Entré
- Ekstra stue (16,3 m²)
- Trapp + løfteplattform
Underetasje
- Sports-/redskapsrom
- Løfteplattform (starter her)
- Separat inngang og trapp
- Garasje (24,8 m²) vegg‑i‑vegg
Villaen er konstruert med en planløsning som gjør huset både praktisk, eksklusivt og fremtidsrettet. Løfte plattformen binder alle etasjer sammen, fra sportsboden i underetasjen til oppholdsrommene i toppetasjen. Øverste etasje blir det naturlige samlingspunktet med lys, utsikt og utgang til balkong, mens mellom planet rommer en egen sove avdeling. Første etasje gir ekstra oppholdsrom og en god inngangs sone, og nederste plan tar hånd om alt det praktiske – inkludert sportsbod og en romslig garasje. En villa bygget for komfort, kvalitet og en svært behagelig hverdag.
Areal er oppgitt i BRA‑E (eksternt bruksareal) og BRA‑I (internt bruksareal) i henhold til gjeldende måleregler.
- BRA‑I: Bruksareal innenfor boenheten, målt fra innside av yttervegger.
- BRA‑E: Bruksareal i eksterne arealer som boder/garasje som ligger utenfor selve boenheten.
Oppgitte arealer er omtrentlige, og mindre avvik kan forekomme ved oppmåling.
Egeninnsats:
Prisene oppgitt ovenfor er klar for Gulv- og malerpakken, altså uten gulvlegging, sparkling og maling i tørre rom. Våtrom blir gjort ferdig iht. romskjema og leveransebeskrivelse.
For et pristillegg vil boligen bli levert nøkkelferdig. Ta gjerne kontakt med oss for å få mer informasjon.
Betalingsbetingelser:
0% ved kontraktsinngåelse, resterende resten ved overtakelse.
Lave omkostninger, kun 2,5% dokumentavgift av tomteverdi. Gebyr for måleprev p.t. kr 25 000,-
NB! 3D/illustrasjonsfoto kan inneholde løsninger og materialvalg som ikke inngår i utbyggers leveranse»



