Enebolig
Lasteinveien 94, 4374 Egersund- Priskr 5 390 000
- Boligtype Enebolig
- Bruks areal (BRA) 144 m²
- Soverom 3 (3)
Beskrivelse
Rekken består av fire moderne eneboliger, plassert et nivå over tomannsboligen med trygg adkomst fra øvre vei. Her ligger boligene høyt og fritt med lune uteplasser og solrike kvaliteter. Store vindusflater gir boligen godt lysinnslipp, fin utsikt og en romslig romfølelse
Nøkkeltall:
- BRA-i: 106,6 m²
- 1. etasje: 54,6 m²
- Underetasje: 52 m²
- Åpen areal (ÅOA): 10,4 m²
- Carport/bod (ÅOA): 26,8 m²
Planløsningene
1. etasje
- Carport med sportsbod
- Overbygd inngangsparti
- Entré
- 1 soverom
- WC
- Åpen stue/kjøkken med utgang til balkong
- Intern trapp til underetasje
Etasjeplan som gir lys, utsikt og moderne oppholdssoner – med praktisk soverom/wc på samme plan.
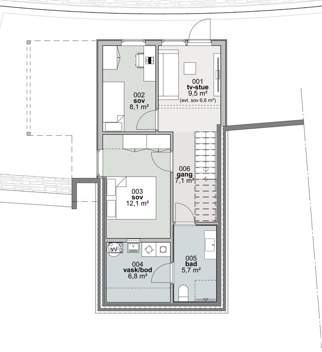
Underetasje
- Gang
- TV-stue med terrassedør ut
- 2-3 soverom
- Bad
Underetasjen fungerer som en egen, privat soveavdeling – med egen utgang fra TV-stuen til uteområdet.
Boligene egner seg svært godt både for familier, par og dem som ønsker en moderne og funksjonell bolig med gode uteplasser og lite vedlikehold.
Egeninnsats:
Prisene oppgitt ovenfor er klar for Gulv- og malerpakken, altså uten gulvlegging, sparkling og maling i tørre rom. Våtrom blir gjort ferdig iht. romskjema og leveransebeskrivelse.
For et pristillegg vil boligen bli levert nøkkelferdig. Ta gjerne kontakt med oss for å få mer informasjon.
Betalingsbetingelser:
0% ved kontraktsinngåelse, resterende resten ved overtakelse.
Lave omkostninger, kun 2,5% dokumentavgift av tomteverdi. Gebyr for målebrev p.t. kr 30 000,-
NB! 3D/illustrasjonsfoto kan inneholde løsninger og materialvalg som ikke inngår i utbyggers leveranse»



