Tomannsbolig
Lasteinveien 94, 4374 Egersund- Priskr 3 250 000
- Boligtype Tomannsbolig
- Bruks areal (BRA) 65 m²
- Soverom 2 (2)
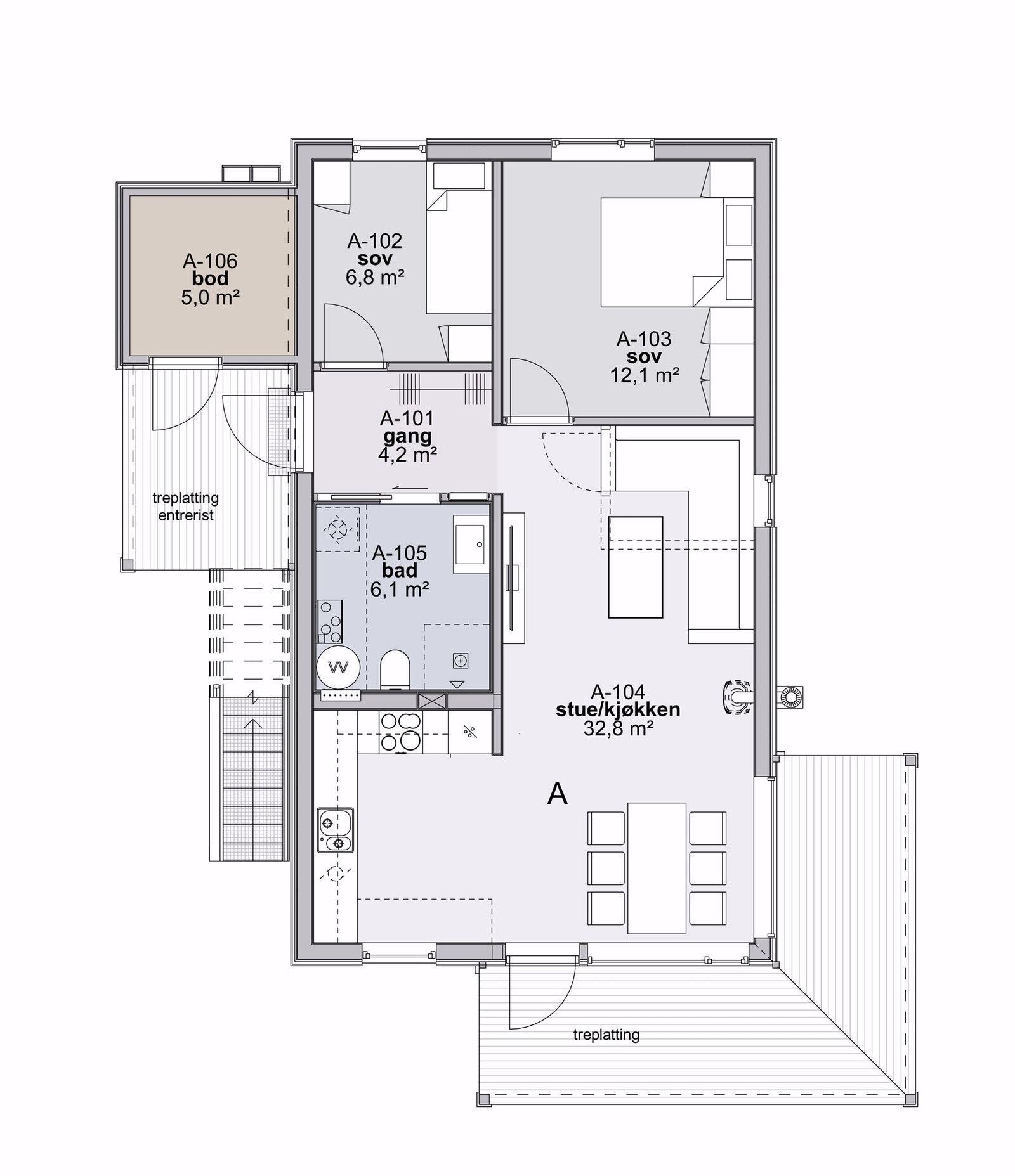
Leilighet A – 1. etasje
Tomannsboligen – to moderne og arealeffektive leiligheter
Tomannsboligen ligger i den nedre delen av feltet og har egen, romslig parkeringsplass på siden av bygget med felles inngang og trappeoppgang. Begge leilighetene har en svært god planløsning, moderne standard og gode private uteplasser.
BRA-i: 65,1 m²
BRA-e: 5,6 m² (bod)
Innhold:
- Treplatting ved hovedinngang
- Privat bod
- Entré med garderobeplass
- Åpen stue/kjøkken-løsning med store vindusflater
- 2 soverom
- Bad
- Utgang til privat uteområde via terrassedør
En lettstelt leilighet med fin flyt og alt på ett plan.
Areal er oppgitt i BRA‑E (eksternt bruksareal) og BRA‑I (internt bruksareal) i henhold til gjeldende måleregler.
BRA‑I: Bruksareal innenfor boenheten, målt fra innside av yttervegger.
BRA‑E: Bruksareal i eksterne arealer som boder/garasje som ligger utenfor selve boenheten.
Oppgitte arealer er omtrentlige, og mindre avvik kan forekomme ved oppmåling.
Egeninnsats:
Prisene oppgitt ovenfor er klar for Gulv- og malerpakken, altså uten gulvlegging, sparkling og maling i tørre rom. Våtrom blir gjort ferdig iht. romskjema og leveransebeskrivelse.
For et pristillegg vil boligen bli levert nøkkelferdig. Ta gjerne kontakt med oss for å få mer informasjon.
Betalingsbetingelser:
0% ved kontraktsinngåelse, resterende resten ved overtakelse.
Lave omkostninger, kun 2,5% dokumentavgift av tomteverdi. Gebyr for måleprev p.t. kr 30 000,-
NB! 3D/illustrasjonsfoto kan inneholde løsninger og materialvalg som ikke inngår i utbyggers leveranse»





